Piarista Központ, "A" Épület Rendház és Gimnázium rekonstrukció

2012, Budapest, Piarista köz 1.

BUDAPESTI PIARISTA KÖZPONT, A ÉPÜLET

RENDHÁZ ÉS GIMNÁZIUM

rekonstrukció

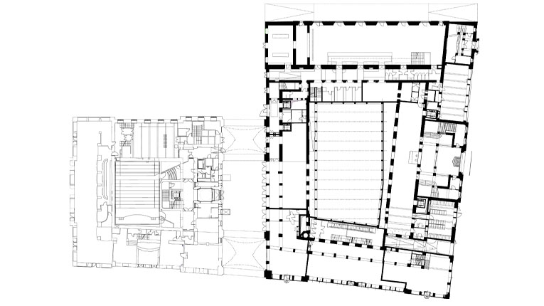
A pesti belváros szívében, a Duna parton, világörökségi területen álló neobarokk palotát a piarista rend építtette a 18. századi rendházuk helyére, Hültl Dezső tervei szerint az I. világháború alatt, 1914-17 között. A két szárnyból álló épület egyik felébe az iskola (A épület), a másikba a rendház (B épület) került. A két szint magas neobarokk kápolnával, illetve az ugyancsak két szint magas tornateremmel és bérbe adható üzletekkel rendelkező épületet a II. világháború alatt bombatalálatok érték, amelyekben súlyosan megsérült, ennek következtében a Duna parti traktus tetőszerkezetét és tornyát le is kellett bontani. Az 1950-es államosítást követően kiköltöztették az épületből a rendet, benne az Eötvös Lóránd Tudományegyetem (ELTE) működött hosszú évtizedekig. Az együttest csak a kilencvenes évek elején kapták vissza a piaristák, de tíz évig üresen állt, mert a rend már egy korszerűen felújított, gazdaságosan fenntartható épületbe akart visszaköltözni. Az építészeti feladat egy olyan, a rendházat és a gimnáziumot is befogadó épület létrehozása volt, amely ötvözi a régi hagyományokat a modern értékekkel és egyben biztosítja a legkorszerűbb oktatás és üzemeltetés-fenntarthatóság feltételeit.


 

 
 
 

Ezen elvárások mentén újítottuk fel a régi reprezentatív főlépcsőházat és a melléklépcsőházakat, illetve alakítottunk ki az új egységeket. A földszintre és részben az első emeletre a fenntartás költségeit is jelentősen támogató, bérbe adható üzletek kerültek: a földszintiek egyben bekapcsolták az épületet a város vérkeringésébe is. Az 5. emelet magasságában az eredeti tervek alapján visszaépítettük az egykori tetőzetet, benne bérirodák és rendházi helyiségek működnek. Részben megőrizve a díszeit, de terét újraértelmezve felújítottuk az utcáról önállóan is megközelíthető rendi nagykápolnát is.  

A középiskola oktatási és közösségi tereit az egykor nyitott, de rossz arányú udvar beépítésével – helyén egy négy emeletnyi magas beton monolit tömböt létrehozva – a 2–4. emeleten helyeztük el. Ennek a kortárs építészeti jelként is értelmezhető tömbnek a földszintjére egy rendezvényteremként is használható nagyterem, a második emeletére egy két szint magasságú, döntött falú tornaterem került. A tömböt eltartottuk az eredeti falaktól – mintegy „ház a házban” elv mentén új térstruktúrát hozva létre –, így többek között meg tudtuk oldani azt is, hogy az tetőzet üvegezett födémkazettáin keresztül az épület belsejébe is jusson természetes fény. A gimnáziumnak a második emelet lett a vezérszintje, ide került az iskolakápolna és az aula is. A tornaterem feletti tetőn létrejött egy kisvárosi léptékű iskolaudvar, amelynek kialakításánál egyszerre kellett megoldanunk a járhatóságot, az alsóbb szintek már említett, innen történő bevilágítását, a tetőzet tökéletes vízszigetelését, továbbá az az alsóbb szintek füstelvezetését is.

Eredeti karakterét gondosan megőrizve, de egyben a 21. századi tér-és anyaghasználati igényeknek, lehetőségeknek, illetve funkcionális elvárásoknak is megfelelő építészeti gondolatok mentén, kiemelkedő színvonalon újult meg az épület, a piarista rend és a város számára is értéket teremtve.

Publikációk:

https://budapest.piarista.hu/uploads/blog/642/fajlok/_tanulmany_golda_janos_metamorfozis.pdf
http://epiteszforum.hu/harmonia-caelestis-piarista-kozpont-budapest

http://epiteszforum.hu/resz-es-egesz-reszeg-esz-beszelgetes-golda-janos-ybl-dijas-epitesszel

http://hazai.kozep.bme.hu/hu/budapesti-piarista-kozpont/
http://hg.hu/cikkek/varos/12965-pesti-haz-europa-legjobb-helyreallitasai-kozott

http://hg.hu/cikkek/varos/13410-2011-legjobb-magyar-epuletei

http://hg.hu/cikkek/varos/11915-regi-uj-otthonukban-a-pesti-piaristak

http://mmakademia.hu/mobil-munkassag/-/record/MMA29995
http://octogon.hu/epiteszet/a-budapest-epiteszkamara-nivodija-2015/

http://tervlap.hu/web/cikk/show/id/835